
Sessrúmnir
The name Sessrúmnir, comes from Norse mythology and is the name of Freya's, Odin's wife, meeting hall. Half the brave vikings killed in battle would be collected by the Valkyrie to fight at Ragnarök, the final battle of the Gods against evil, and Freya would welcome the other half to join her in the giant meeting hall and enjoy themselves eternally.
Sessrúmnir will be created to provide space for art seminars, retreats and creative projects, bringing together artists, designers and other creative groups as well as those wanting the opportunity to workshop or submerge themselves in healing and awareness.
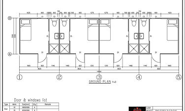
There will be 8 rooms with ensuites, able to provide accommodation for up to 16-18 people. There will be a shared common area consisting of a lounge, breakfast and kitchen area, access to a laundry and utilities room as well as a dinning table, which converts to a seminar table, with seating for 14 people. Audio-visual equipment will be available.
Research students wishing to spend an extended time in the Thorhammer Nicholas Beowulf Memorial Research Library, can also access the accommodation. Funding is being sought to set up the library which specialises in Western and Japanese art theory, history and aesthetics, as well as Landscape Design and Bonsai. It is hoped to be able to offer a research grant to do postgraduate research in the library.


2 x 40ft containers with roof over space between for shared space
4 room container
Folding doors
Floor plan with mining accommodation containers

Bargain 13 trusses I picked up on Facebook Marketplace for $700

My two mining accommodation units are due for delivery in the last two weeks of January 2017

Scratch Pad
Getting ready to work on the ensuites as soon as the units arrive. Just straight screen seem to be the hardest thing to find
I
.

Another great bargain from Ebay The front doors and windows are ready to install and they come pre-hung,.
I
.







